𝐅𝐎𝐑 𝐒𝐀𝐋𝐄 / 𝐅𝐎𝐑 𝐑𝐄𝐍𝐓 
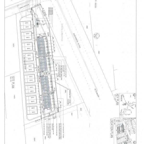
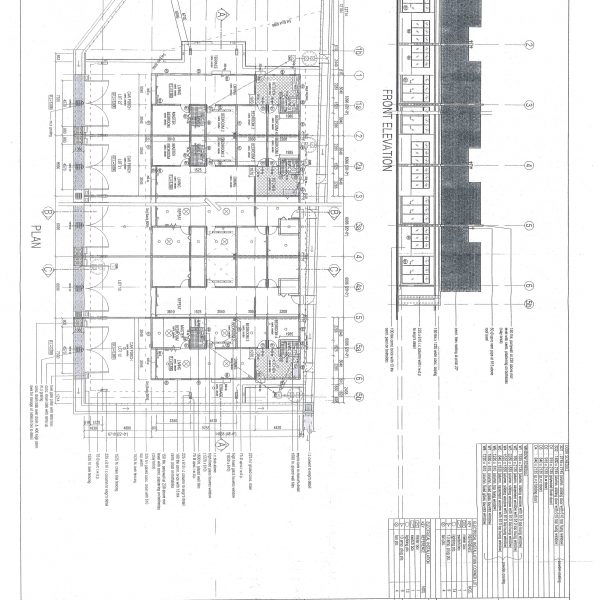
𝐓𝐀𝐌𝐀𝐍 𝐏𝐑𝐄𝐌𝐈𝐄𝐑𝐆𝐎𝐋𝐃 @ 𝐓𝐀𝐍𝐉𝐔𝐍𝐆 𝐋𝐔𝐌𝐏𝐔𝐑 (𝐋𝐎𝐓 𝟑𝟔𝟔𝟐𝟎)
– Berdekatan Kuantan Specialis (KPJ)
– Berdepan dengan pasaraya Jaya Gading & TMG
– Bersebelahan dengan pam minyak petronas Tg.Lumpur
– 2 KM ke bandar kuantan
– Lokasi strategik di tepi jalan besar.
*Sekira berminat boleh menghubungi*
Jonathan – 012-9297410
Ms. Ida – 012-9816170






No comment